Friköpt
Förverkliga din dröm om att köpa en fastighet med äganderätt där du kan ha ditt företag eller hobbyverksamhet. Äganderätt innebär att du äger din egen lokal. Friköpt tomt om ca 72 kvm, golvyta om ca 68 kvm och kontorsyta i entresolplan om ca 34 kvm. Takhöjden är på hela 5,65 meter.
Vikporten har en bredd på 4,2 meter och en höjd på 4 meter med dubbla fönsterrader som ger ett fint och naturligt ljusinsläpp. Det finns även en passagedörr i vikporten.
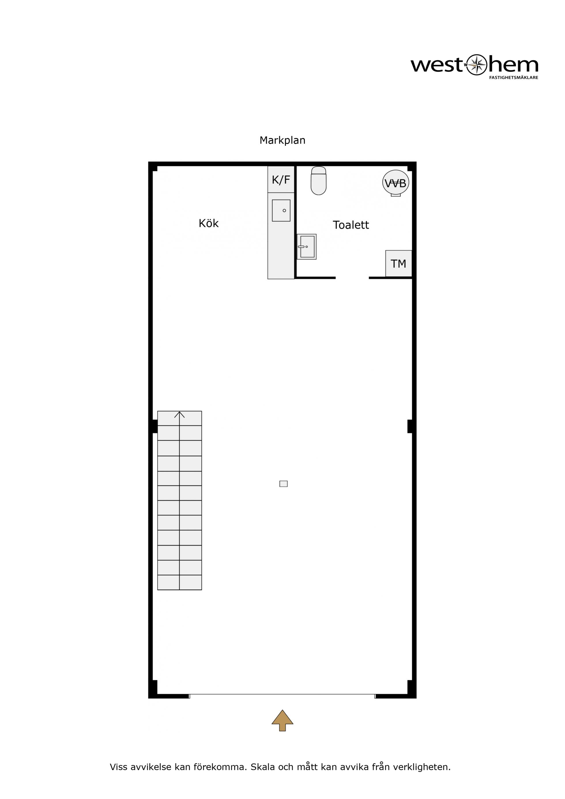
Lokalens golvyta om ca 68 kvm är fördelad på en större öppen arbetsyta på epoxy-behandlat betonggolv med ett kommunalt golvavlopp i mitten av lokalytan. Längre in i lokalen finns ett kök med handfat, köksbänk, skåpinredning, kyl/frys samt matplats i öppen planlösning. Ett tillbyggt rum med wc, handfat, tvättmaskin och varmvattenberedare. upp för trappan finns ett entresolplanet utgör ca 34 kvm och är en öppen kontorsyta med textilgolv och spotlightsbelysning utmed väggarna.
Larm går att överta, 523 kr per månad, uppsägningstid 3 månader.
Parkering för två bilar.
Hela anläggningen har asfalterad gårdsyta och är omgiven av inhägnande högstängsel med passagesystem som är låst kvällar och helger. Varje fastighetsägare har passagemöjlighet dygnet runt.
SNABBFAKTA
MÄKLARE

| Bostadstyp | Hyresfastighet |
|---|---|
| Upplåtelseform | Friköpt |
| ADRESS | Kranbalksgatan 4CF |
| Postnummer | 72138 |
| Ort | Västerås |
| Kommun | Västerås |
| OMRÅDE | Erikslund |
| Län | Västmanlands |
| TOMT | Areal: 73kvm Tomttyp: |
| DRIFTKOSTNADER |
Elkostnad: 7000 kr/år Total driftkostnad: 16780 kr/år |
|---|---|
| Taxering |
Taxeringsår: 2025 Typkod: 432, Industrienhet, lager Byggnadsvärde: 1083000 Summa taxeringsvärde: 1083000 Skatt/avgift: 5415 |
| TOMTAREAL | 73 kvm |
| Utförd | NotSelected |
|---|
Alla bilder
Kontakta oss
- Gunilla: 073-512 31 55
- Jonas: 070-777 20 96
- Lisa: 072-456 00 98
- E-post : info@westhemfast.se


